
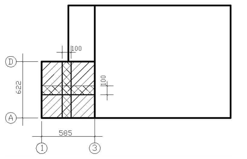
Jak prawidłowo zbroić ławę fundamentową, aby uniknąć problemów?
Zrozum, jak prawidłowo zbroić ławę fundamentową, aby uniknąć problemów. Sprawdź najważniejsze techniki i błędy, które mogą wpłynąć na zbrojenie lawy.

Zrozum, jak prawidłowo zbroić ławę fundamentową, aby uniknąć problemów. Sprawdź najważniejsze techniki i błędy, które mogą wpłynąć na zbrojenie lawy.

Sprawdź, na co można dostać dofinansowanie przy remont domu. Ocieplenie, wentylacja, instalacje słoneczne i inne opcje wsparcia finansowego!

Skutecznie usuń pajęczyny z elewacji dzięki sprawdzonym metodom. Poznaj naturalne sposoby i techniki, które pomogą Ci utrzymać czystość budynku.

Naucz się, jak prawidłowo nałożyć tynk kornik. Odkryj kluczowe techniki i porady, które zapewnią estetyczny efekt i trwałość Twojej elewacji.

Dowiedz się, czym myć tynk silikonowy, aby skutecznie usuwać zabrudzenia bez uszkodzeń. Sprawdź nasze sprawdzone metody i zadbaj o estetykę tynku!

Jak usunąć pył po remoncie z paneli? Poznaj skuteczne metody i porady, które pomogą Ci w łatwy sposób przywrócić blask Twoim podłogom.

Wybierz idealną elewację do czarnej dachówki. Poznaj najlepsze kolory, które podkreślą elegancję Twojego domu i stworzą harmonijną kompozycję.

Wybierz idealny kolor tynku do czerwonego dachu, aby stworzyć harmonijną kompozycję. Sprawdź najlepsze propozycje i zainspiruj się!

Sprawdź, jakie ogrzewanie do domu szkieletowego będzie najlepsze. Porównaj opcje, ich efektywność i koszty, aby wybrać idealne rozwiązanie dla siebie.

Poznaj zastosowanie płyty dwukierunkowo zbrojonej, kluczowe zasady projektowania oraz obliczenia, które pomogą w efektywnym budownictwie.